【GT-00419】 Jハイムビル 2階
-

バス・トイレ別
-

2階以上住戸
-

室内洗濯機置場
-

エアコン付
-

オートロック
- 月額賃料 / 月額共益費
- 4.7万円 / 1,000円
- 敷金 / 礼金
- 1ヶ月 / 1ヶ月
- 保証金 / 敷引 / 償却金
- - / - / -
- 更新料
- 16,500円
- 所在階
- 2階 / 3階建
- 専有面積
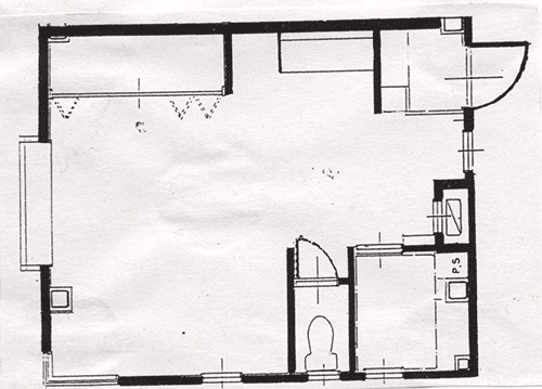
- ワンルーム 31.5m²
物件番号:GT-00419
情報更新日:2026/04/17 次回更新予定日は情報更新日より15日以内
【GT-00419】 Jハイムビルの物件詳細情報
- 所在地
- 神奈川県秦野市南矢名258(地図を見る)
- 交通情報
-
小田急小田原線東海大学前駅徒歩15分
- コメント
- 日当たり良好。ゆとりの9帖。たっぷりの収納力。電化製品付。インターネット無料。
- 建物構造
- 鉄骨造
- 築年月
- 2000年1月
- 総戸数
- 4戸
- 駐車場
- -
- 主要採光面
- 北東
- 取引態様
- 貸主紹介
- 契約期間
- 1年
- 保険
- 損害保険加入必須
20,700円 2年
- 引渡
- 即時 -
- 現況
- -
- 入居属性
- 女性限定
- インターネット
- -
- 鍵交換費用
- -
- 室内清掃費用
- -
- 備考
- 鍵交換任意。
- 食事提供
- -
- 設備
- フローリング、 家具・家電付、 エアコン、 冷蔵庫、 照明付き、 BS、 駐輪場、 バイク置場、 バストイレ別、 浴室乾燥機、 冷房、 防犯カメラ、 外国人可
【GT-00419】 Jハイムビルのその他間取りプラン
- 間取図
- 所在階
- 賃料/管理費
- 敷金/礼金
- 間取タイプ/専有面積

【GT-00419】 Jハイムビルの取扱い不動産会社
- 会社名
- 【紹介】株式会社学生情報センター町田店
- 住所
- 東京都町田市原町田6-3-3町映ビル3階B室
- 電話番号
- 0120-356-525
- 営業時間
- [10月~3月]9時~18時、[4月~9月]10時~17時
- 定休日
- [10月~1月]水曜日(祝日除く) 、[2月~3月]無休、[4月~9月]土日祝
- 免許番号
- 国土交通大臣免許(2)第9054号
- 所属団体名
- (一社)不動産流通経営協会、(公社)首都圏不動産公正取引協議会

